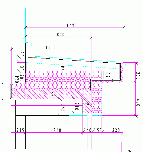
VÝPOČET KONZOLY

VÝPOČET MOMENTU V PATĚ KONZOLY V PLOŠE

PŘITÍŽENÍ V KONCI KONZOLY OD NOSU

VÝPOČET MOMENTU V PATĚ KONZOLY NA OKRAJI DESKY

POSOUVAJÍCÍ SÍLA

POSOUZENÍ NAVRŽENÉ DESKY
BETON B3O, OCEL 10505 (R), KRYTÍ 25 MM
NÁVRH 5 PROFILŮ PRŮMĚR 10 MM / MB KRYTÍ 25 MM
Qbu = 56 Kn > Q
Mu = 16,5 kNm > M2
he=0,11 M
=> SÍLA V JEDNOM PRUTU PRO Mu = 16,5 kNm je cca :

ÚNOSNOST SVARU JE CCA :
SVAR a = 4 MM, l = 50 MM, OBOUSTRANNÝ
OCEL 37 (TABULKY 1 MM SVARU => 664 N)
NAVRŽEN JE SVAR OBOUSTRANNÝ a=4 MM l = 50 MM

POSOUZENÍ PLECHU P8-100 MM
VLASTNÍ PLECH

SVAR PLECHU